ОБОРУДОВАНИЕ ДЛЯ ФАСОВКИ КРЕПЕЖА В УПАКОВОЧНУЮ ТАРУ
Автоматическая линия упаковки в картонные ящики с электромагнитной ориентацией крепежа RG-A-C888-VA-W


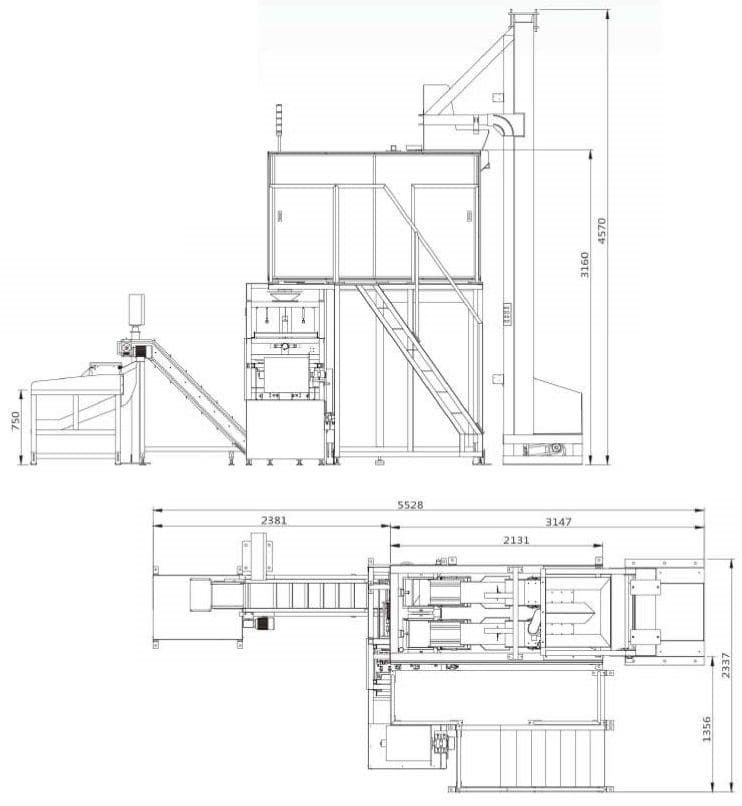
Технологический процесс автоматической упаковки крепежа в картонные ящики
Лист картона
Формирование картонного ящика
Загрузка крепежа
Запечатывание картонного ящика
Компьютерная печать и наклеивание этикетки
Укладка ящиков на поддоны
Обёртывание груза на паллете плёнкой
Упаковочная линия для фасовки крепежа в KLT-контейнер RG-A-K888-V
Контейнеры KLT — прочные, надежные и устойчивы к воздействию горюче-смазочных материалов, кислотных и щелочных жидкостей. Обеспечивается шупомоглощение в процессе транспортировки. Материал выдерживает температурное воздействие в пределах от -200°C до +1000°C. За счет рифленого дна возможно применение совместно с гравитационными стеллажами для организации автосборочных конвейерных линий.

Упаковочное оборудование подходит для фасовки болтов болтов/винтов: M6~M24 × Д12~100 мм (MAX), гаек М6-М24 в KLT-контейнер и гофрокартонную коробку.
Состав линии упаковочного оборудования
Линия для фасовки крепежа в KLT-контейнер состоит из следующих узлов:
- Механизм для автоматического подъема и опрокидывания заводской тары (кюбеля), выполняющий функцию подачи изделий в вибрационный бункер.
- Вибрационный бункер открытого типа ёмкостью 800 кг. Бункер оснащен горизонтальной штангой-упором для кантовки кюбелей с новой партией крепежа в бункер. Регулировка скорости разгрузки осуществляется путем автоматической регулировки частоты колебаний вибробункера.
- Устройство первичной вибрационной подачи заготовки плоского типа предназначена для постепенной равномерная подачи изделий от загрузочного бункера на промежуточный лоток устройства вторичной подачи заготовки. Вибролоток оснащен электромагнитным вибратором, включающимся автоматически, в соответствии с данными, поступающими от датчиков контроля веса крепежа.
- Устройство вторичной вибрационной подачи заготовки плоского типа.
- Устройство третичной вибрационной подачи заготовки плоского типа.
- Весовой дозатор с 3 этапами взвешивания обеспечивает двухэтапную дозировку: 90% заданного веса через устройство грубой фасовки, и остальные 10% через систему подачи V-образной формы. Погрешность взвешивания не более ±1% от общего веса.
- Система подачи V – формы.
- Конвейер подачи пустого KLT-контейнера служит для накопления и подачи сформированных пустых контейнеров под лоток выгрузки крепежа. Он представляет собой приводной ленточный конвейер, установленный на сварной раме. Включается автоматически при получении сигнала о заполнении контейнера на участке фасовки. Конструкция участка фасовки крепежа в KLT-контейнер обеспечивает точное позиционирование пустых контейнеров под лоток фасовки с исключением пересыпания крепежа за пределы контейнера.
- Контрольно-измерительный конвейер для пустой KLT-тары.
- Конвейер выгрузки упакованной продукции после заполнения автоматически выводится из-под дозатора, освобождая место под следующий контейнер.
- Конвейер повторной инспекции (отбраковки) упаковочной тары.
- Конвейер буферной зоны выгрузки упакованной продукции.
- Платформа для технического обслуживания упаковочной линии.
Оборудование работает под управлением ПЛК Mitsubishi, взаимодействие с оператором производится через панель управления HMI. В линии упаковки используется пневматическая система производства SMC, FESTO или аналогичного класса.
Техническая спецификация линии упаковки крепежа
| Фасуемый крепёж | болты/винты M6~M24 × Д12~100 мм, гайки М6-М24 |
|---|---|
| Производительность линии | 5-8 контейнеров/коробок в минуту |
| Вес упакованой тары | 5-30 кг |
| Напряжение питания | 3-фазное 380В 50Гц |
| Максимальная потребляемая мощность всей линии | 6.0 кВт |
| Давление воздуха | 5,0 кг/см2 |
| Расход потребляемого сжатого воздуха | 28.86 л/мин |
| Габариты линии | (Д)7165 × (Ш)4600 мм |
| Максимальная высота упаковочной линии | ~4800 мм |
Размер упаковочной тары
| Тип упаковки | Длина, мм | Ширина, мм | Высота, мм |
|---|---|---|---|
| KLT-контейнер | 265 | 166 | 129,5 |
| Гофрокартонная коробка | 246 | 216 | 165 |
| 246 | 216 | 100 |

Автоматическое оборудование для упаковки крепежа в плёнку и пакеты RG-A-P888-V

Оборудование предназначено для фасовки и упаковки машиностроительного крепежа и крепежа общего назначения в KLT-тару, в пакеты и в плёнку. Это упаковочное оборудование также подходит и для фасовки крепежа смешанного типа.
Размер полиэтиленового пакета (Д)60-150 × (Ш)60-150 мм.
Состав оборудования для упаковки крепежа в плёнку и в пакеты
- автоматическое устройство взвешивания и счёта пакетов. Оснащено двумя вибрационными чашами Ø450 мм, подача контролируется фотоэлектрическим сенсором;
- сетчатый конвейер шириной 1500 и длиной 260 мм с тормозным двигателем и приводом мощностью 1/2 л.с. Конвейер оснащен фотоэлектрическим сенсором позиционирования заготовки;
- автоматическая упаковочная машина с функцией запечатывания полиэтиленовых пакетов;
- загрузочный бункер для подачи крепежа из заводской тары (кюбеля);
- наклонный конвейер длиной 1500 и шириной 250 мм;
- устройство взешивания и отбраковки недовеса/ перевеса;
- пульт управления.
Спецификация упаковочного оборудования
| Фасуемый крепёж | машиностроительный крепёж общего назначения |
|---|---|
| Размер упаковочного пакета | (Д)60-150 × (Ш)60-150 мм |
| Производительность | 1-25 пакетов в минуту |
| Давление воздуха | 5 кг/см2 |
| Напряжение питания | 1-фазное 220В 50Гц |
| Габариты упаковочного оборудования | 1500 × 950 × 1200 мм |

Автоматическое оборудование для упаковки метизов и крепежа в коробки большого размера RG-A-C888-CC

Автоматическая машина для укладки метизов и крепежа в коробки малого размера RG-A-B888-VAW

| Продукция | Шурупы, саморезы и другие виды крепежа |
| Размеры продукции (макс.) | Ø4 × (Д)180 ~ Ø16 × (Д)150 |
| Размеры коробки (мм) | Макс.: (Д)200 × (Ш)150 × (В)150 |
| Производительность | 6~9 коробок в минуту |
| Характеристики | Можно выбрать упаковку по количеству или по весу |