ЦЕНТРИФУГИ ДЛЯ ОБЕЗЖИРИВАНИЯ, СУШКИ И ПРОМАСЛИВАНИЯ
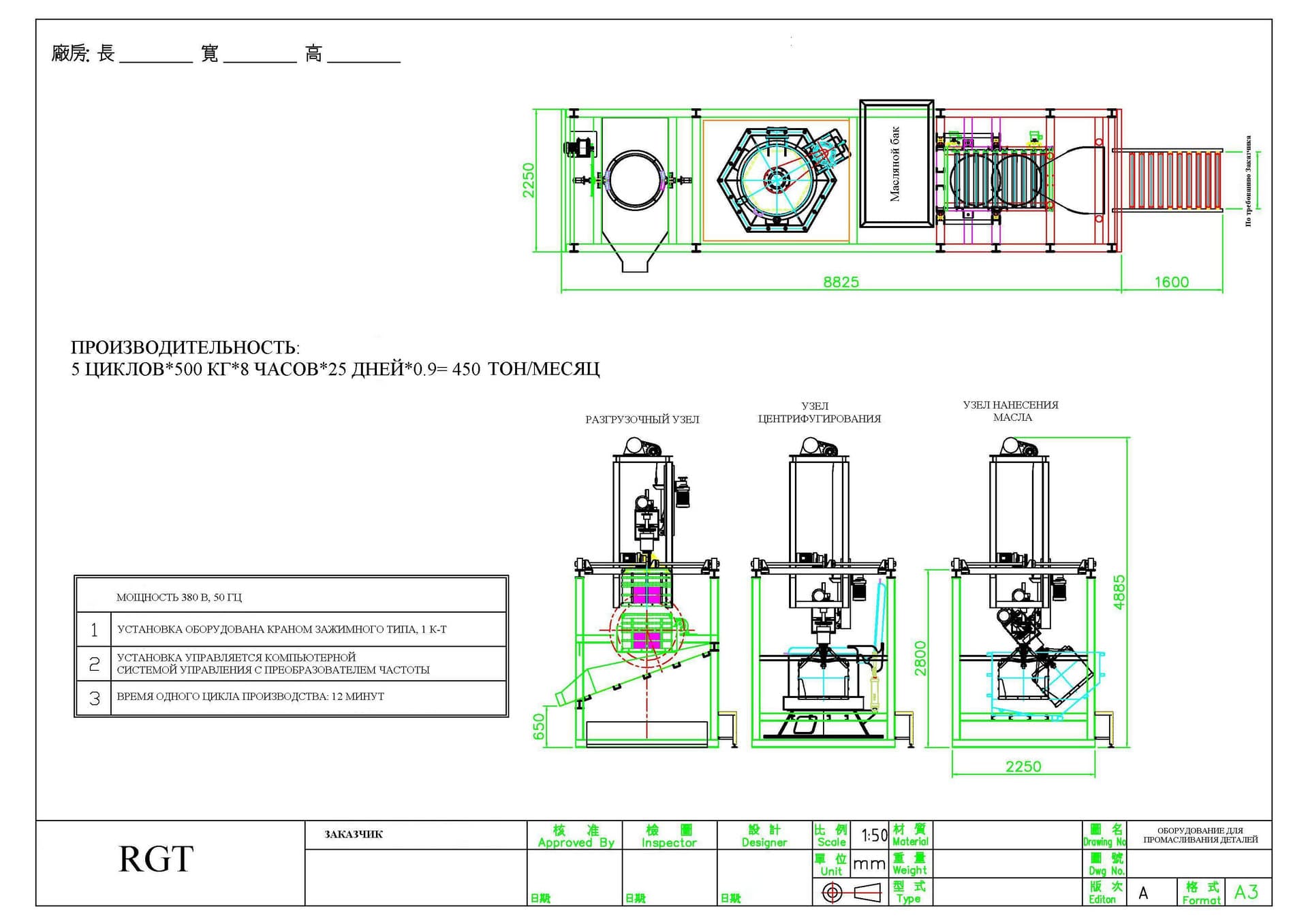
ОБОРУДОВАНИЕ ДЛЯ ПРОМАСЛИВАНИЯ КРЕПЕЖА, МЕТИЗОВ И ДЕТАЛЕЙ АВТОМАТИЧЕСКОЕ

Мы поставляем полностью автоматизированные центрифуги, которые могут быть работать в составе линий гальванической обработки или же использоваться автономно.
Оборудование производит промасливания метизной продукции. При этом центрифуга дополнительно комплектуется станцией подачи продукции, масляным баком и станцией выгрузки готовых изделий с пневматическим механизмом опрокидывания корзины.
Линия промасливания крепежа, метизов и деталей полностью автоматическая, работает под управлением компьютерной системы, оснащена преобразователем частоты. Общая потребляемая мощность составляет примерно 35 л.с. Перенос изделий в корзине по технологическим участкам (загрузочный узел, масляной бак, узел центрифугирования, разгрузочный узел) производится портальным краном зажимного типа.
Техническая спецификация и характеристики установки промасливания крепежа
- Производительность линии (по желанию Заказчика): 5 циклов × 500 кг × 8 часов × 25 дней × 0.9 = 450 тонн/месяц
- Напряжение питания: 380 В, 50 Гц
- Установка оборудована краном зажимного типа, 1 комплект. Функция крана: захват и перемещение корзины.
- Установка управляется компьютерной системой управления с преобразователем частоты
- Время одного цикла промасливания метизов: 12 минут.
- Линия оборудования состоит из 4-х узлов: загрузочный узел, узел промасливания деталей, узел центрифугирования, разгрузочный узел.
- Габариты оборудования (Д×Ш×В): 8825×2250×4885 мм
Особенности технологического процесса
Процесс промасливания крепежа полностью автоматизирован и управляется программным логическим контролером производства Mitsubishi (Япония). Технология промасливания выглядит следующим образом:
в корзину Захват корзины
краном Окунание
в масло Центрифугирование
продукции Выгрузка и опрокидывание
готовой продукции
Преимущество такой линии заключается в том что в ней можно спроектировать любое количество центрифуг и ванн окунания в масло (в зависимости от требований по производительности), настройка времени окунания, времени обработки в центрифугах задается на панели оператора. Доступны автоматический режим управления (ПЛК) и ручной.
- Загрузочный узел (загрузочный конвейер)
- Узел промасливания деталей
- Узел центрифугирования
- Разгрузочный узел
Действующие проекты оборудования для промасливания метизов, крепежа и деталей
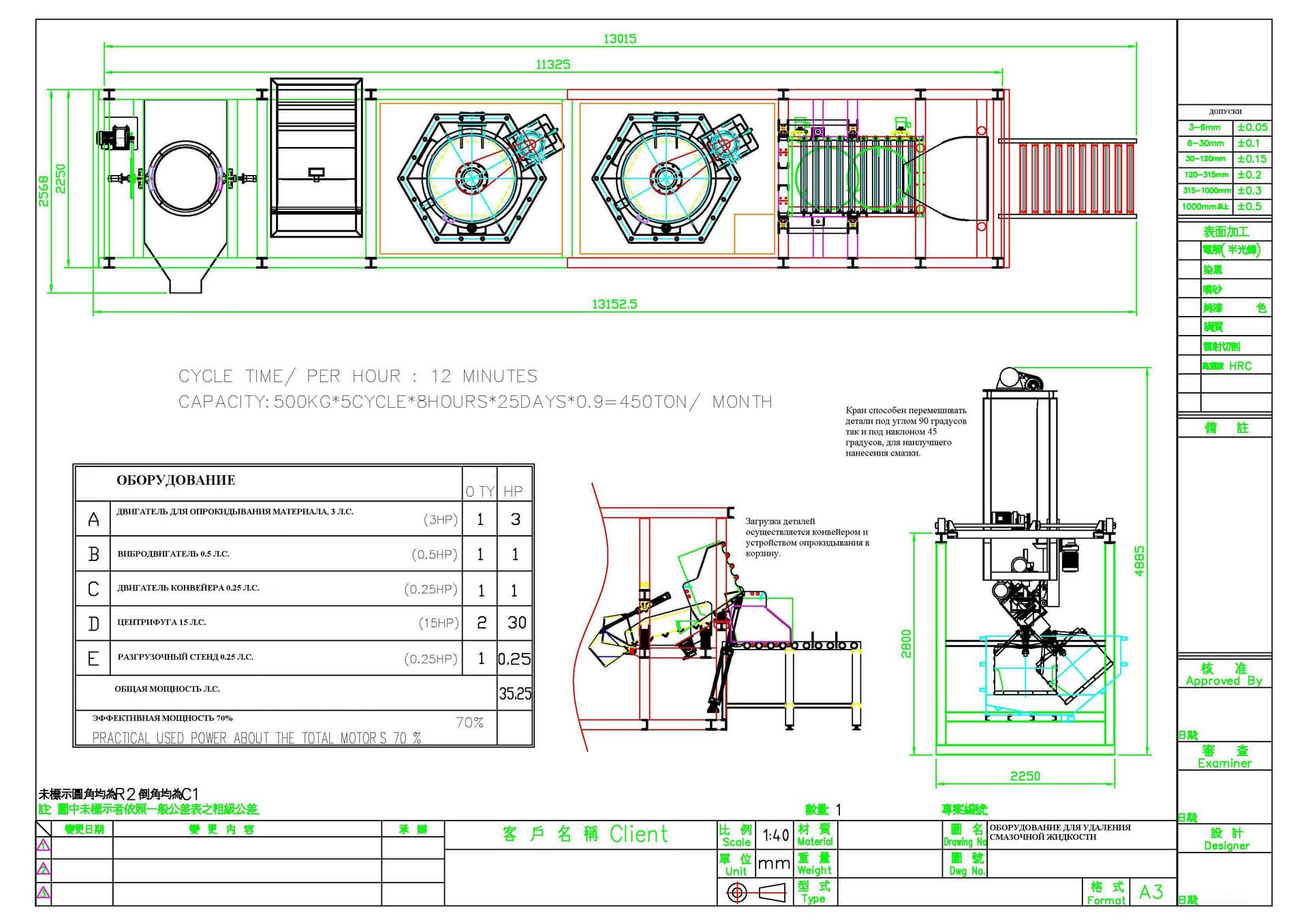
АВТОМАТИЧЕСКАЯ ЦЕНТРИФУГА ДЛЯ ОБЕЗЖИРИВАНИЯ И СУШКИ КРЕПЕЖА, МЕТИЗОВ И ДЕТАЛЕЙ

Центрифуга предназначена для обезжиривания и сушки метизов горячим воздухом. Центробежная сила при подаче горячего воздуха позволяет быстро удалить такие жидкости как вода, масло с поверхности крепежа.
Диаметр основания центрифуги 1500 мм, высота 1200 мм. Армирование центрифуги выполнено из стали SS400. Центрифуга должна устанавливаеться на фундамент и крепиться анкерными болтами.
Внутренняя корзина центрифуги выполнена из нержавеющей стали SUS#304. Диаметр корзины 597 мм, высота 500 мм, толщина металлических стенок 2 мм. Корзина имеет открывающееся дно. Запасная корзина входит в комплект центрифуги.
Нагрев - электрический или газовый. Скорость вращения центрифуги контролируется инвертором. Тормозная система центрифуги оснащена преобразователем частоты и пневматическим тормозом. Открытие/ закрытие крышки производится автоматически.

Техническая спецификация и особенности центрифуги обезжиривания и сушки метизов
- Производительность линии (по желанию Заказчика): 5 циклов × 500 кг × 8 часов × 25 дней × 0.9 = 450 тонн/месяц
- Напряжение питания: 380 В, 50 Гц
- Двигатель опрокидывающего механизма загрузочной тары 3 л.с.
- Вибродвигатель 0.5 л.с
- Двигатель конвейера 0.25 л.с.
- Центрифуга 15 л.с.
- Двигатель разгрузочного стенда 0.25 л.с.
- Общая мощность около 35 л.с., эффективная мощность 70%
- Установка оборудована краном зажимного типа, 1 комплект. Функция крана: захват и перемещение корзины.
- Установка управляется компьютерной системой управления с преобразователем частоты
- Время одного цикла обезжиривания крепежа составляет 12 минут
- Линия оборудования состоит из 4-х узлов: загрузочный узел, узел обезжиривания деталей, узел центрифугирования, разгрузочный узел.
- Габариты оборудования (Д×Ш×В): 11325×25680×4885
- Загрузочный узел (загрузочный конвейер)
- Узел центрифугирования
- Узел обезжиривания деталей
- Разгрузочный узел